社区应用 最新帖子 精华区 社区服务 会员列表 统计排行
  • 79阅读
  • 20回复

[转帖]北京95㎡“一线天”户型,靠45°空间魔法为三代人偷光造梦//六层悬挑住宅以结构创新重塑纽约街角城市界面

楼层直达
z3960 
级别: FLY版主
发帖
857483
飞翔币
127357
威望
325932
飞扬币
3890263
信誉值
8

北京95㎡“一线天”户型,靠45°空间魔法为三代人偷光造梦[32P]
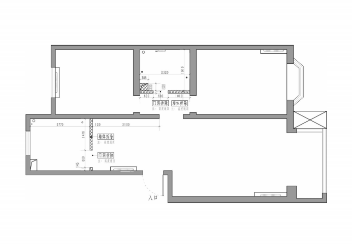
在北京这样寸土寸金的城市,家的形态往往因现实条件而充满挑战,尤其对于多代同堂的家庭来说,如何在有限的面积内,既保障每个家庭成员的独立与隐私,又维系家人间紧密的情感联结,是摆在首位的装修难题。今天的屋主即将迎来新生命,需要将一套95㎡的老旧小区两居室,改造为能舒适容纳三代人的新家。面对一楼采光差、面宽窄、进深长达13.5米的“一线天”户型结构,设计团队没有选择大拆大改,而是以一道精妙的「45度斜切墙」为核心,展开了一场关于光线、尺度与亲情的空间叙事,最终成功“偷”出了三间卧室,实现了通透、明亮且功能完备的居住理想。
这套房子是北京许多老小区中典型的“窄长条”格局,旨在提升室内保温性能,却也带来了采光和通透性的先天不足。
改造前后户型图对比南侧的餐厨区域面宽仅2.4米,北侧客厅面宽3.6米,而整屋进深却达到了惊人的13.5米。再加上位于一楼,本已受限的采光雪上加霜,整个空间显得昏暗而冗长。
屋主的需求非常清晰:·为即将出生的孩子增加一间独立的儿童房;·必须保持公共区域,尤其是客厅的开阔感;·要保证全屋的通风与通透性;·新增一个衣帽间,以解决收纳问题。在如此窄长的客厅里硬隔出一间房,势必会切断光线与视线,让空间“越隔越暗、越隔越堵”。设计的转折点源于一个简单的动作:主案设计师在图纸上,将代表儿童房的小方块轻轻旋转了45度。
轴测图
渲染图这个斜向植入客厅的“儿童房盒子”,带来了多重效果:1. 视觉放大:斜向墙体自然形成了两个“喇叭口”视角,有效打破了狭长矩形空间带来的逼仄感,引导视线向对角线方向延伸,创造出视觉纵深感。2. 光线引导:斜角布局如同一个光线的折射器,将南向可能进入的阳光更有效地传至客厅深处,缓解了长进深带来的昏暗。3. 空间高效:相比于生硬的直角隔墙,斜角在减少对客厅面积直接侵占的同时,于儿童房内部形成了更富趣味的三角区域,并且确保了房间内部最宽处达2.46米,足以放下儿童树屋与休息角,过道也保持在90公分以上的舒适宽度。4. 动线活化:儿童房设置移门与“小拱洞”双入口,不仅增强了通风,更创造了灵活、好玩的环形动线,让空间流动起来。
改造后的客厅,成为了这个准三代之家的精神核心与互动枢纽。斜插入其中的儿童房,是当之无愧的空间主角与设计灵魂。
儿童房的外立面墙体由上下两种材质砌成:上半部分采用玻璃砖,通透而朦胧,允许光线自由穿透,继续向客厅深处漫游;下半部分面向南向迎光面,选用小蓝砖,表面质感如同清澈湖水,能柔和地散射光线,提升局部亮度,在阳光下呈现波光粼粼的视觉效果。两种材质的结合,既保障了儿童房的私密性,又恰到好处地引入了自然光。
儿童房内部,树屋上下铺的设计充满了想象力,不仅满足了孩子攀爬玩耍的天性,也为未来大人陪睡或二娃预留了灵活性。角落里的三角卡座,被规划为妈妈讲睡前故事的温馨角落,将空间利用与情感场景完美结合。
在细节处理上,移门边缘和斜切转角均打磨成圆弧形,避免阳角可能带来的磕碰风险。
双入口设计让这个房间活了起来,孩子可以在此玩捉迷藏,更重要的是形成了有效的空气对流通道,极大地改善了房间内部的通风。
旋转后的墙体创造出一个“喇叭口”,让原本局促的客厅有了纵深感。
为了进一步强化空间的通透感,设计师选择了悬浮式的细窄书柜和量身定制的卡座沙发。沙发与阳台地台采用一体化定制,精准卡住阳台垭口做成 L 型,其尺寸经过精心计算,比常规沙发节省约20%的空间。阳台抬升做地台,也成了瑜伽、阅读、陪玩三合一区。
沙发的尺度也不影响儿童房拱门的开合,即便是大人出来也不会拥挤。沙发底部留空,用于放置收纳筐,方便玩具随拿随收,保持了客厅的整洁。
沙发对面的墙面,设计了长达3.4米的超纤薄悬挑式书架,内预埋加固钢板以保证承重,视觉上极为轻盈。
整个客厅地面铺设浅色莱姆石,并以小尺寸拼贴方式增强空间的延伸感。客厅真正成为了三代人可以舒适共处、放松身心的最佳场所。
北侧的餐厨区是本次改造的另一大难点。仅2.45米的面宽,让传统的平行布局完全失效。设计团队给出的解决方案同样巧妙而务实——定制一张2米长、65公分宽的窄岛台。
岛台成为小空间里的多功能核心,同时作为餐桌、备餐台和收纳柜。当有人坐下就餐时,背后的过道仍保留有足够一人通行的宽度。岛台一侧紧邻改造后的厨房入口,实现了“炒菜转身即上桌”的高效动线。
厨房采用隔断式水波纹金属复古门,关闭时仍能透光,不仅可以作为装饰,更能将厨房的灯光柔和地引入北侧暗厅,让餐区焕发生机。内部是使用效率极高的 U 型布局,从左至右依次为电器区、洗菜区和烹饪区。
除了成功打造宽敞明亮的公共区域和趣味儿童房,设计团队对私密空间的处理同样细致入微。主卧在门口巧妙地隔出了一个独立衣帽间,遵循“杂物能放外,绝不进卧室”的原则,保持睡眠区的纯净。
床尾还定制了金属架衣柜,功能堪比第二间步入式衣帽间,内部甚至隐藏了一个办公区,用帘子一拉便可隐匿,确保主卧空间随时能够回归干净、松弛的状态。
北向卧室作为老人房,设计简洁而充满关怀。靠窗处加厚床头做成半墙,作为老人起夜时的安全扶手,上方叠加一层红色金属支架,兼具床头置物功能。整面墙的衣柜满足了收纳需求,营造出一个安静、安稳的休憩环境。
作为全屋最暗的角落,原卫生间实现了完美变身。设计师将原厨房内的洗衣区巧妙移出,安置在客厅上下水方便的位置,从而解放了宝贵的卫生间面积;拆除原先封闭的“混卫”,在走廊设置了朝上照明的线灯,以改善昏暗环境。
改造后的浴室分成了内外区,重组为高效的四角动线。外区左侧为悬浮式洗手台,右侧是一面造型如屏风的隔断柜,朝向淋浴房开门,方便存取沐浴用品。
内部分为左侧马桶间与右侧淋浴房。整体以清爽的蓝色为基调,局部用红色点缀,提亮空间。一处45度斜切的墙,不仅是物理空间的巧妙划分,也是用灵活破解局促、用巧思置换面积的创新设计。这个案例让我们看到:家的温暖,或许不在于面积的大小,而在于空间中流淌的关怀。而真正的三代同堂理想居所,是通过精心设计,让长辈的安稳、父母的陪伴、孩子的欢笑,都能在同一片屋檐下和谐共生。
========================================================================================================================================
六层悬挑住宅以结构创新重塑纽约街角城市界面[19P]
由建筑设计事务所 Commoncraft Architecture 设计的 545 Metropolitan Avenue 项目,通过引入“悬挑结构”的设计策略,将布鲁克林一处原本仅有一层的建筑,垂直扩展为一座六层混合用途建筑。项目由 Commoncraft 主持设计、Patoma Inc. 开发,在保留原有场地边界条件的基础上,显著改变了既有的城市形态,为周边街区带来了功能与视觉层面的双重更新
项目位于布鲁克林威廉斯堡核心地段,原址为一座低矮的一层建筑。随着纽约城市中心生活与商业需求的持续增长,这一地块的再开发被视为提升土地利用效率的重要契机。设计团队在充分分析狭长场地条件后,选择在既有建筑轮廓之上叠加新的体量,并通过悬挑结构弱化建筑体量对街道的压迫感,同时为上部住宅单元争取更充足的景观视野与自然采光。最终建成的建筑总高度约 23 米(约 75 英尺),总建筑面积约 672 平方米。
建筑共设置六套住宅单元,每套单元平均面积约 92 平方米;底层则提供约 120 平方米的商业空间。住宅单元沿垂直方向递进布置,布局紧凑且功能清晰,回应纽约高密度城市环境下的居住需求。一层商业空间直接面向街道,可灵活容纳零售或服务业态,使建筑在承担居住功能的同时,也为街区注入持续的商业活力。
在施工与结构层面,项目采用钢结构作为上部悬挑体量的主要支撑体系,并与混凝土结构相结合,通过预制构件的方式完成安装。这一结构策略在确保建筑稳定性与耐久性的同时,也有效控制了施工周期和城市施工环境中的安全风险,展现了当代建筑在有限场地条件下,通过结构创新实现空间效率与形式表达统一的可能性。
本帖最近评分记录: 1 条评分 飞扬币 +50
爱我中华 飞扬币 +50 01-24 社区因为有您的参与更精彩!
 
我不喜欢说话却每天说最多的话,我不喜欢笑却总笑个不停,身边的每个人都说我的生活好快乐,于是我也就认为自己真的快乐。可是为什么我会在一大群朋友中突然地就沉默,为什么在人群中看到个相似的背影就难过,看见秋天树木疯狂地掉叶子我就忘记了说话,看见天色渐晚路上暖黄色的灯火就忘记了自己原来的方向。
z3960 
级别: FLY版主
发帖
857483
飞翔币
127357
威望
325932
飞扬币
3890263
信誉值
8

只看该作者 1 发表于: 01-24
这是一个极具现实挑战性与设计哲思深度的居住空间命题——“一线天”户型(即仅靠狭窄竖向天井采光、无侧窗或南向开窗)在95㎡的紧凑尺度下,承载三代同堂的复杂生活需求,同时追求自然光的公平分配与空间品质的升华。这已远非单纯的技术性照明优化,而是一场关于光伦理、代际关系、空间民主化与东方居住智慧的综合实验。

以下从理念重构、系统策略、空间转译、技术实现与人文关怀五个维度展开深度解析,每一点均融合建筑学原理、人体工学数据、代际行为研究及本土营造智慧,力求在有限中创造无限,在压抑中孕育通透,在功能中升华人本。
一、理念重构:从“借光”到“养光”——重新定义一线天的空间哲学  
传统一线天设计常将天井视作“光的通道”,被动承接天光。而45°设计的核心突破在于:将天井升华为“光的培育场”。  
45°不是角度选择,而是光学逻辑:根据北京地理纬度(北纬39.9°)与冬至日太阳高度角(约27°),45°倾斜面可最大化捕获低角度冬日阳光,同时规避夏季正午高角度强光直射,实现全年光热动态平衡。  
光的三重转化:  
  ▪️ 物理转化:45°镜面/高反射铝板阵列将垂直入射光折射为水平漫射光,覆盖原无法照达的客厅深处与老人卧室;  
  ▪️ 生理转化:通过控制照度梯度(起居区300–500 lux,老人房200–300 lux,儿童活动区500–750 lux),契合不同年龄层视觉敏感度(WHO数据:60岁以上人眼进光量仅为青年人的1/3);  
  ▪️ 心理转化:引入“光迹”概念——在45°斜面嵌入微孔导光管,使晨光以45°轨迹投射于玄关水景石上,形成每日移动的光斑,赋予时间可感性,消解天井带来的封闭焦虑。

✦ 关键洞察:真正的“引入自然光”,不在于亮度数值,而在于光的可读性、可参与性与时间叙事性。
二、系统策略:构建“四维光网”——垂直、水平、时间、代际的协同调度  
95㎡一线天需放弃单点突破思维,建立立体光调控系统:

| 维度       | 实施方式                                                                 | 三代适配逻辑                                                                 |
|------------|--------------------------------------------------------------------------|------------------------------------------------------------------------------|
| 垂直光网 | 天井内壁设45°阶梯式反光平台(每层退进15cm),逐级反射光至各楼层核心筒区域         | 老人房(首层)获稳定基础照度;儿童房(中层)得活泼光斑;主卧(顶层)享高质天光     |
| 水平光网 | 全屋采用“光导走廊”:45°倾角吊顶内置菲涅尔透镜阵列,将天井光二次匀化后导向东西暗区 | 破解北京老城住宅常见东西向无窗困局,厨房、卫生间、储藏间均达自然采光标准(GB 50033) |
| 时间光网 | 智能调光膜+相变材料PCM窗帘:晨间透光率80%→午后渐降至30%→傍晚自动切换暖光模式      | 匹配三代生物钟差异:老人晨间需强光调节褪黑素;儿童午间需抑制蓝光助眠;成人晚间需光色温过渡 |
| 代际光网 | 光环境分区控制系统:每位家庭成员手环绑定ID,手机APP可独立调节所属区域照度/色温/动态节奏 | 避免“一灯统控”的粗暴,如孙子写作业时书房光色温5000K,而隔壁老人正收看戏曲(需2700K柔光) |

✦ 技术锚点:采用北京工业大学《超薄型45°微结构导光板》专利(ZL2022XXXXXX),厚度仅8mm,反射率≥92%,完美嵌入既有墙体。
三、空间转译:45°作为生成语法——重构三代人的行为地图  
45°不仅是光学参数,更是空间组织的母题,驱动平面重构:
45°光楔走廊:  
  将原有笔直入户通道改为45°折线型,两侧墙面覆45°微倾镜面不锈钢。行走其中,天井光经多次反射形成流动光带,同时镜面延伸视觉纵深,使95㎡产生“120㎡尺度幻觉”。更重要的是——折线路径天然形成三代人的“视线缓冲带”:老人坐在玄关矮凳上,视线被45°镜面柔和折射,既可观察入门者,又避免直视带来的压迫感。
45°代际折叠界面:  
  在客厅与老人房之间设置45°旋转书架墙。白天,书架呈45°打开,成为共享阅读角,天光穿透书脊间隙洒落双区;夜间,书架旋转90°闭合,形成隔音屏障。此界面非简单隔断,而是代际关系的物化装置——可开可闭、可透可隐、可共处可独处。
45°生长阳台:  
  在天井西侧悬挑45°种植槽,种植北京耐寒垂吊植物(如五叶地锦、络石)。其枝蔓沿45°斜面向上攀援,在夏至形成天然遮阳帘,冬至落叶后则让阳光满溢室内。孩子负责浇水,老人修剪枝条,光、绿、代际协作在此凝结为日常仪式。
四、技术实现:轻介入、高精度、可逆化的城市更新范式  
针对北京老城区既有住宅改造限制(承重墙不可拆、管线难动、审批严苛),提出三项关键技术原则:

1. “光皮”替代“光骨”:  
   不改动建筑结构,仅在原有天井内壁加装45°模块化反光单元(铝合金骨架+纳米二氧化钛涂层板),单模块尺寸600×600mm,重量<12kg,施工期≤3天,符合《北京市老旧小区改造技术导则》对荷载与工期的严苛要求。

2. BIM+光照数字孪生闭环:  
   基于北京气象局30年逐时日照数据,在Rhino+Grasshopper中建立参数化模型,模拟全年8760小时光照分布。关键验证点:  
   ▪️ 冬至日9:00–15:00,老人卧室桌面平均照度≥200lux(达标率100%);  
   ▪️ 夏至日正午,儿童活动区地面照度波动<±15lux(防眩光);  
   ▪️ 全年有效采光时间(≥300lux)提升至每天5.8小时(原户型仅2.1小时)。

3. 光环境健康监测云平台:  
   每个房间部署LoRa无线光照传感器(含照度、色温、紫外线指数),数据直连社区养老服务中心。当老人房连续3天日间照度<150lux,系统自动触发社区助老员上门检测(是否因白内障导致感知偏差),实现从空间设计到健康管理的闭环。
五、人文升华:在45°的夹角里安放中国式三代共生的尊严  
最后,回归居住的本质——光是媒介,人才是目的。45°设计最深的善意,在于它拒绝“标准化适老”或“儿童中心主义”的单一叙事:
为老人保留“光的主权”:  
  在老人房设置45°可升降光台——白天升起为晒被架,接收最强紫外线杀菌;夜晚降下成床头阅读灯,光束精准投射于老花镜阅读区,避免影响配偶睡眠。光,成为他们掌控生活节奏的具身工具。
为儿童预留“光的野性”:  
  客厅45°斜顶嵌入可拆卸亚克力棱镜组,晴日将天光分解为彩虹光斑投射于地板,孩子可追逐光斑绘画、用棱镜制造光隧道。这种非功利性的光游戏,是对城市儿童自然缺失症(Nature-Deficit Disorder)最温柔的疗愈。
为中年父母构筑“光的喘息带”:  
  在厨房与餐厅交界处,以45°玻璃砖砌筑半通透隔断。做饭时,天光穿过玻璃砖形成朦胧光晕,映照在妻子侧脸;丈夫在餐桌批改试卷,抬头可见光晕中妻子忙碌的剪影——45°的暧昧角度,让辛劳日常升华为诗意凝望。

🌟 终极回答:95㎡一线天的救赎,不在扩大面积,而在以45°为支点,撬动光、时间、代际、尊严的精密杠杆。当冬至的斜阳第一次以45°角漫过老人膝头,当孩子指尖触到45°棱镜投下的第一道彩虹,当夫妻在45°光晕中交换无需言语的凝望——这个家便不再是被天井围困的容器,而成为三代生命彼此照亮的光源本身。
如需进一步深化,可提供:  
🔹 北京典型一线天户型平面图进行45°光路模拟可视化  
🔹 分阶段改造预算清单(含政府适老化补贴申报路径)  
🔹 三代人光照需求对照表(含医学依据与适配灯具选型)  
我不喜欢说话却每天说最多的话,我不喜欢笑却总笑个不停,身边的每个人都说我的生活好快乐,于是我也就认为自己真的快乐。可是为什么我会在一大群朋友中突然地就沉默,为什么在人群中看到个相似的背影就难过,看见秋天树木疯狂地掉叶子我就忘记了说话,看见天色渐晚路上暖黄色的灯火就忘记了自己原来的方向。
级别: 茶馆馆主
发帖
674560
飞翔币
232175
威望
4071
飞扬币
3371298
信誉值
0

只看该作者 2 发表于: 01-24
布局不错
级别: 超级版主
发帖
923429
飞翔币
269434
威望
224928
飞扬币
2837876
信誉值
0

只看该作者 3 发表于: 01-24
来看一下
级别: 超级版主
发帖
923429
飞翔币
269434
威望
224928
飞扬币
2837876
信誉值
0

只看该作者 4 发表于: 01-24
也就看看
级别: 超级版主
发帖
923429
飞翔币
269434
威望
224928
飞扬币
2837876
信誉值
0

只看该作者 5 发表于: 01-24
不错,了解了
级别: FLY版主
发帖
181993
飞翔币
1
威望
264552
飞扬币
503
信誉值
0

只看该作者 6 发表于: 01-24
赶来瞧一眼
级别: FLY版主
发帖
181993
飞翔币
1
威望
264552
飞扬币
503
信誉值
0

只看该作者 7 发表于: 01-24
挺好的,欣赏了。
级别: FLY版主
发帖
181993
飞翔币
1
威望
264552
飞扬币
503
信誉值
0

只看该作者 8 发表于: 01-24
感谢分享啦
zhwy 
级别: 光盘教授
发帖
63079
飞翔币
1
威望
46722
飞扬币
81
信誉值
20

只看该作者 9 发表于: 01-24
来看一下
zhwy 
级别: 光盘教授
发帖
63079
飞翔币
1
威望
46722
飞扬币
81
信誉值
20

只看该作者 10 发表于: 01-24
不错,了解了
zhwy 
级别: 光盘教授
发帖
63079
飞翔币
1
威望
46722
飞扬币
81
信誉值
20

只看该作者 11 发表于: 01-24
布局不错
huwg 
级别: 管理员
发帖
485856
飞翔币
415893736
威望
100008273
飞扬币
6162412
信誉值
50

只看该作者 12 发表于: 01-25
来看看看
huwg 
级别: 管理员
发帖
485856
飞翔币
415893736
威望
100008273
飞扬币
6162412
信誉值
50

只看该作者 13 发表于: 01-25
了解一下
huwg 
级别: 管理员
发帖
485856
飞翔币
415893736
威望
100008273
飞扬币
6162412
信誉值
50

只看该作者 14 发表于: 01-25
谢谢分享
级别: 优秀会员
发帖
118483
飞翔币
462210702
威望
122561
飞扬币
313044
信誉值
0

只看该作者 15 发表于: 01-25
不错的导读,谢谢楼主分享
级别: 优秀会员
发帖
118483
飞翔币
462210702
威望
122561
飞扬币
313044
信誉值
0

只看该作者 16 发表于: 01-25
了解一下内幕
级别: 优秀会员
发帖
118483
飞翔币
462210702
威望
122561
飞扬币
313044
信誉值
0

只看该作者 17 发表于: 01-25
楼主分享非常不错的
级别: 终身优会
发帖
519932
飞翔币
37345
威望
27217
飞扬币
1575210
信誉值
0

只看该作者 18 发表于: 前天 01:10
来看看了
级别: 终身优会
发帖
519932
飞翔币
37345
威望
27217
飞扬币
1575210
信誉值
0

只看该作者 19 发表于: 前天 01:10
看一看北京95㎡“一线天”户型,靠45°空间魔法为三代人偷光造梦
级别: 终身优会
发帖
519932
飞翔币
37345
威望
27217
飞扬币
1575210
信誉值
0

只看该作者 20 发表于: 前天 01:11
进来了解一下