01



项目信息
建筑面积:287.71m2 露台:9.60m2
一层
面积:164.85m2
尺寸:14.089×12.089m 层高:3.0m
一层设有主卧,次卧,厨房,餐厅,公卫,储物间,客厅,玄关,门廊
二层
面积:118.06m2
尺寸:14.089×12.089m 层高:3.0m
二层设有主卧(含衣帽间、卫生间),次卧×2,公卫,起居室,露台
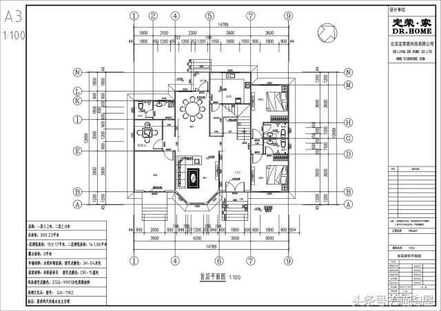
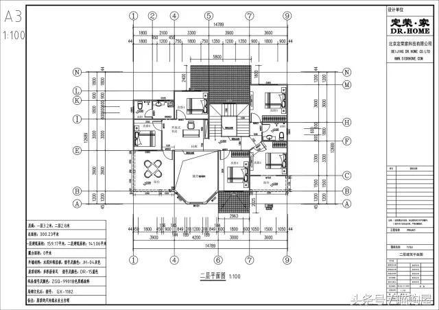
02



项目信息
建筑面积:300.23m2
一层
面积:159.17m2
尺寸:14.789m×12.689m 层高:3.2m
一层设有主卧(含卫生间)×2,厨房,储藏室,门厅,餐厅,客厅,棋牌室,卫生间,堂屋
二层
面积:141.06m2
尺寸:14.789m×12.689m 层高:2.8m
二层设有卧室×5,卫生间,开放式书房,阳台