社区应用 最新帖子 精华区 社区服务 会员列表 统计排行
  • 489阅读
  • 8回复

[分享]深圳光明一号北欧风格装修效果图案例赏析

楼层直达
级别: 茶馆馆主
发帖
658860
飞翔币
225468
威望
4021
飞扬币
3290280
信誉值
0


设计上简单随性,干净明快,色彩搭配时尚,整个空间显得优雅迷人。没有过多的色彩,没有华丽的搭配,家具的选择上,多为原木家具,符合北欧风自然清新的气质。
项目地址:深圳-光明一号
项目面积:90平
建筑格局:三房两厅
设计风格:北欧风格
设计师:付泽
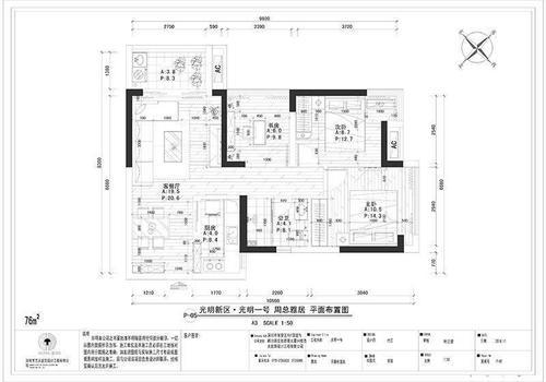
平面布置图


客餐厅





浅灰沙发与黑色铁艺茶几、明黄色的单人座椅所打造的率性空间与相面装饰形成反差,让你在繁华喧闹的都市中找到可静谧小憩的空间。


饮食是家居中最浪漫的修行,用餐区与客厅相连,有与厨房区只用透明玻璃河段,扩大视觉空间,创意圆形灯具的点缀,为整块空间增添精致时尚元素。



麻雀虽小,五脏俱全,整个空间的视觉效果一点也不拥挤。
主卧





主卧浅灰墙面,充沛的光线,搭配木饰背景墙面,别有一番味道。
次卧


次卧没有过多装饰,依旧凸显北欧的极简干净。

厨房


卫生间


卫浴间瓷砖选用渐变灰色砖防滑,色调统一,简约干净。
关键词: bot
 
srwam 
级别: 超级版主
发帖
750387
飞翔币
918490327
威望
25712
飞扬币
3341281
信誉值
0

只看该作者 1 发表于: 2018-09-24
来看看
srwam 
级别: 超级版主
发帖
750387
飞翔币
918490327
威望
25712
飞扬币
3341281
信誉值
0

只看该作者 2 发表于: 2018-09-24
挺不错的
z3960 
级别: FLY版主
发帖
841032
飞翔币
219480
威望
215872
飞扬币
2887333
信誉值
8

只看该作者 3 发表于: 2018-09-25
回 楼主(爱我中华) 的帖子
进来看看
我不喜欢说话却每天说最多的话,我不喜欢笑却总笑个不停,身边的每个人都说我的生活好快乐,于是我也就认为自己真的快乐。可是为什么我会在一大群朋友中突然地就沉默,为什么在人群中看到个相似的背影就难过,看见秋天树木疯狂地掉叶子我就忘记了说话,看见天色渐晚路上暖黄色的灯火就忘记了自己原来的方向。
z3960 
级别: FLY版主
发帖
841032
飞翔币
219480
威望
215872
飞扬币
2887333
信誉值
8

只看该作者 4 发表于: 2018-09-25
效果不错
我不喜欢说话却每天说最多的话,我不喜欢笑却总笑个不停,身边的每个人都说我的生活好快乐,于是我也就认为自己真的快乐。可是为什么我会在一大群朋友中突然地就沉默,为什么在人群中看到个相似的背影就难过,看见秋天树木疯狂地掉叶子我就忘记了说话,看见天色渐晚路上暖黄色的灯火就忘记了自己原来的方向。
级别: 超级版主
发帖
915304
飞翔币
262513
威望
224903
飞扬币
2800358
信誉值
0

只看该作者 5 发表于: 2018-09-25
来看一下
级别: 超级版主
发帖
915304
飞翔币
262513
威望
224903
飞扬币
2800358
信誉值
0

只看该作者 6 发表于: 2018-09-25
也就看看
级别: 超级版主
发帖
915304
飞翔币
262513
威望
224903
飞扬币
2800358
信誉值
0

只看该作者 7 发表于: 2018-09-25
不错,了解了
级别: 终身优会
发帖
256164
飞翔币
48428
威望
39522
飞扬币
913582
信誉值
30

只看该作者 8 发表于: 2018-09-25
欣赏一下。